·Î±×ÀÎ ¤Ó ȸ¿ø°¡ÀÔ
 
  ´º½º/µ¿Çâ
  Àç°ÇÃà/Àç°³¹ß´º½º
  Àç°ÇÃà½ÃȲ
  Àç°ÇÃà
  ½Ã¼¼
  »ç¾÷´Ü°èº°°Ë»ö
  Àç°ÇÃàÁýÁßÁ¶¸í
  Àç°ÇÃàÅõÀÚTIP
  Àç°ÇÃà°¡À̵å
  Àç°³¹ß
  ±¸¿ª
  »ç¾÷´Ü°èº°°Ë»ö
  Àç°³¹ßÁýÁßÁ¶¸í
  Àç°³¹ßÅõÀÚTIP
  Àç°³¹ß°¡À̵å
  ´ºÅ¸¿î
  Áö¿ªÁ¤º¸
  ´ºÅ¸¿îÁýÁßÁ¶¸í
  ´ºÅ¸¿îÅõÀÚTIP
  ´ºÅ¸¿î°¡À̵å
ÇöÀçÀ§Ä¡ : Home > Àç°ÇÃà/Àç°³¹ß > ´ºÅ¸¿î ÁýÁßÁ¶¸í

 
 ¾ÆÇö3±¸¿ª
Áö±¸/±¸¿ª °³¿ä

¡× ¾ÆÇö3±¸¿ª

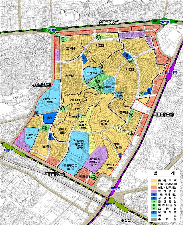
Ź¿ùÇÑ ±³Åëȯ°æÀ» ¸Å°³·Î ´ë±Ô¸ð ¾ÆÆÄÆ®ÃÌÀ¸·Î Å»¹Ù²ÞÇϰí ÀÖ´Â ¸¶Æ÷±¸ °ø´ö¿À°Å¸® ÀÏ´ë ÅõÀÚÀÚµéÀÌ ´« ¿©°Üº¼ ¸¸ÇÑ ±¸¿ªÀÌ ¹Ù·Î ¾ÆÇö3±¸¿ªÀÌ´Ù. »çÅëÆÈ´Þ µµ·Î¸ÁÀ» °®Ãá ¾ÆÇöµ¿ ÀÏ´ë´Â ¸¶Æ÷ ÀÏ´ë ÅõÀÚÁöµµ¸¦ ¹Ù²Ü °í±ÞÁÖ°ÅÁö·Î ¼ºÀåÇÒ ÇÊ¿äÃæºÐÁ¶°ÇÀ» °®Ãè´Ù¸é ÆòÀ» ¹Þ´Â´Ù.

¾ÆÇö´ºÅ¸¿îÀº ¸¶Æ÷±¸ ¾ÆÇöµ¿ 633 ÀÏ´ë 32¸¸9,000Æò ±Ô¸ð·Î ÁÖÅÃÀç°³¹ß»ç¾÷, µµ½Ãȯ°æÁ¤ºñ»ç¾÷, ÁÖÅÃÀç°ÇÃà»ç¾÷À¸·Î ³ª´µ¾î °³¹ßÀÌ ÁøÇàµÈ´Ù. ÀÌÁß ¾ÆÇö3±¸¿ªÀº 6¸¸2,770ÆòÀ¸·Î ¾ÆÇö´ºÅ¸¿îÀÇ 20%°¡·®À» Â÷ÁöÇϰí ÀÖ°í, ÃßÁøÁßÀÎ ¿°¸®±¸¿ª, °ø´ö5±¸¿ª µî Àç°³¹ß »ç¾÷À» ÃßÁøÇϰí ÀÖ´Â ±¸¿ª °¡¿îµ¥ »ç¾÷¼Óµµ°¡ °¡Àå ºü¸£´Ù.

ÁöÇÏö 5È£¼± ¾Ö¿À°³¿ª°ú ÁöÇÏö 2È£¼± ¾ÆÇö¿ªÀ» °É¾î¼­ 5ºÐ À̳»¿¡ ÀÌ¿ëÇÒ ¼ö ÀÖ´Â ´õºí ¿ª¼¼±ÇÀÌ´Ù. ¶Ç ½Åõ·Î¿Í ¸¶Æ÷·Î¸¦ ÅëÇØ ±¤È­¹®, ¿ë»ê, ¿©Àǵµ·Î ÁøÀÔÀÌ ½±´Ù. 3±¸¿ªÀº Áö³­ÇØ ¸» ±¸¿ªÁöÁ¤À» ¹Þ°í 8°³¿ù¿© ¸¸¿¡ Á¶ÇÕ¼³¸³ Àΰ¡¸¦ ¹Þ¾Ò´Ù. ÇöÀç »ï¼º¹°»ê°ú ´ë¿ì°Ç¼³ÀÌ ½Ã°ø»ç·Î ³»Á¤µÅ 25~43ÆòÇü 3,329°¡±¸°¡ µé¾î¼³ °èȹÀÌ´Ù.

ÀÌ °÷Àº 20Æò ¹Ì¸¸ ´Ù°¡±¸ ÁÖÅÃÀÌ ¸¹ÀÌ ÀÖ¾î ÃÖ¼Ò 15ÆòÀÌ»ó ÁöºÐÀ» °¡Áö°í ÀÖ¾î¾ß 30ÆòÇü´ë, 30ÆòÇü ÁöºÐÀ» °¡Áö°í ÀÖ¾î¾ß 40ÆòÇü´ë


»ç¾÷°³¿ä

À§Ä¡ ¼­¿ï½Ã ¸¶Æ÷±¸ ¾ÆÇöµ¿ 635¹øÁö ÀÏ¿ø
¸éÀû 207,508§³
»ç¾÷À¯Çü ÁÖ°ÅÁß½ÉÇü ´ºÅ¸¿î°³¹ß»ç¾÷
ÆíÀǽü³
£ª¹é  È­  Á¡ : Çö´ë¹éÈ­Á¡
£ª½ÃÀå,»ó°¡ : ¾ÆÇö½ÃÀå, ºÏ¾ÆÇö½ÃÀå
£ªÁ¾ÇÕ º´¿ø : ½ÅÃÌ ¼¼ºê¶õ½º
Çб³
£ªÃʵî Çб³ : ¾ÆÇöÃÊ, ÇѼ­ÃÊ, ºÏ¼ºÃÊ, Ãß°èÃʱ³
£ªÁß  ÇÐ  ±³ : ¾ÆÇöÁß, ÇѼºÁß, Áß¾Ó¿©Áß±³
£ª°íµî Çб³ : ÇѼº°í, Áß¾Ó¿©°í
£ª´ë  ÇÐ  ±³ : ¿¬¼¼´ë, ÀÌÈ­¿©´ë, ¼­°­´ë0
±³Åë
£ªÁö  ÇÏ  Ã¶ : ÁöÇÏö 5È£¼± ¾Ö¿À°³¿ª, ÁöÇÏö 2È£¼± ¾ÆÇö¿ª
ÃßÁøÇöȲ

2003.11.18   ´ºÅ¸¿î Áö±¸ ÁöÁ¤
2004.01.14   ´ºÅ¸¿î °³¹ß ±âº»°èȹ¼ö¸³ ¿ë¿ª¹ßÁÖ ¹× Âø°ø
2004. 04   °³¹ß±âº»±¸»ó(¾È) ¹ßÇ¥
2004. 10   °³¹ß°èȹ½ÂÀÎ ¹× ¿ì¼±»ç¾÷½ÃÇàÁö±¸ ¼±Á¤(¼­¿ï½Ã)
2005.12.29   ¾ÆÇöÁ¦3ÁÖÅÃÀç°³¹ß±¸¿ª Á¤ºñ±¸¿ª ÁöÁ¤
2006.09.01   ¾ÆÇöÁ¦3ÁÖÅÃÀç°³¹ßÁ¤ºñ»ç¾÷Á¶ÇÕ¼³¸³Àΰ¡


  ȸ»ç¼Ò°³ ¤Ó °³ÀÎÁ¤º¸Ãë±Þ¹æÄ§¤Ó ¤Ó Á¦ÈÞ¾÷ü¤Ó ±¤°í¾È³» ¤Ó Contact Us ¤Ó À̸ÞÀÏ ¹«´Ü¼öÁý°ÅºÎ ¤Ó Help ¤Ó Site Map
»ç¾÷ÀÚµî·Ï¹øÈ£ : 117-81-22000    ´ëÇ¥ÀÚ : Á¤¿äÇÑ    »ç¾÷ÀåÁÖ¼Ò : ºÎõ½Ã ¿ø¹Ì±¸ »óµ¿ 461 Åõ³ª ÁöÇÏ1Ãþ
´ëÇ¥ÀüÈ­ : 070-7168-1000    °¡ÀÔ¹®ÀÇ : 070-7168-1010